Karakteristiek sfeervol wonen !
Aan de rand van Maasniel nabij alle voorzieningen.
Verrassend ruim en goed onderhouden en gemoderniseerd karakteristieke halfvrijstaande woning, gelegen aan de rand van Maasniel op ca. 10 min. van het centrum van Roermond.
Deze sfeervolle gezinswoning is instapklaar en o.a. voorzien van energielabel C , 4 slaapkamers, een aparte werk-/slaapkamer op de begane grond, ruime sfeervolle woonkamer en aparte woon-/leefkeuken en een mooie landelijk vrij uitzicht aan de voorzijde van de woning.
Er is tevens een heerlijk overdekt terras en veel opslagruimte aanwezig zoals een garage-/berging (ca. 20m2) en een 2e extra berging (ca. 17m2).
Prima centraal gelegen op een steenworp afstand van de dorpskern van Maasniel en de autosnelwegverbinding A73 (Venlo - Roermond) en nabij winkels en overige voorzieningen, o.a. Albert Heijn (XL), scholen, Retailpark en het Designer outlet centrum.
Maak bij interesse snel een afspraak voor een bezichtiging en overtuig uzelf !
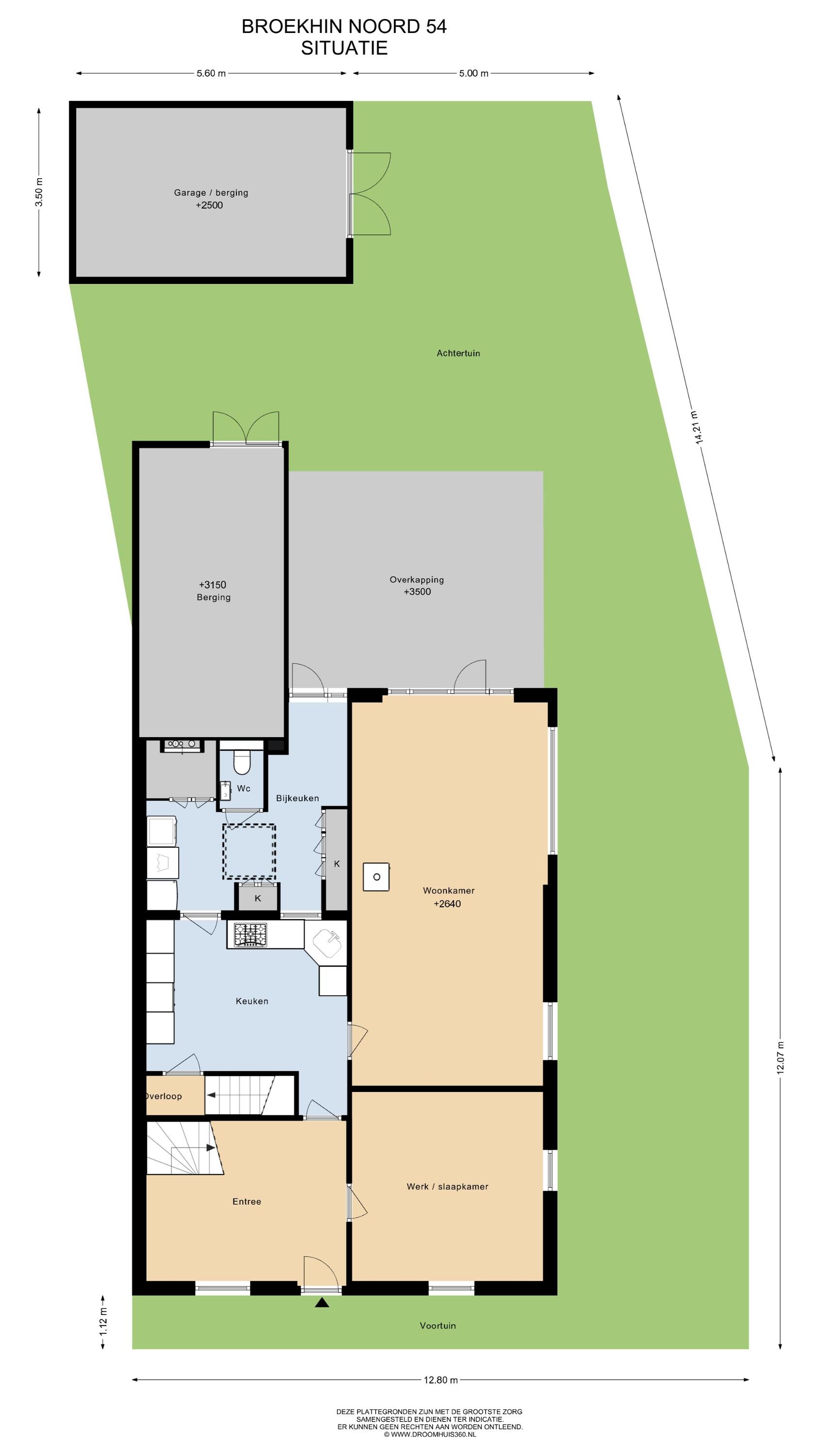
Indeling
Kelder:
praktische provisiekelder (ca. 15m2).
Begane grond:
Entree/hal v.v. moderne antraciet tegelvloer, aparte werk-/slaapkamer (ca. 15m2) voorzien van moderne antraciet tegelvloer, sfeervolle woonkamer (ca. 31m2) voorzien van moderne brede laminaatvloer met houtkachelaansluiting (houtkachel ter overname) en dubbele tuindeuren naar het overdekte terras en tuin, aparte woon-/leefkeuken voorzien van mooie antractiet tegelvloer en nette neutrale keukenopstelling voorzien van inbouwapparatuur (5-pits gas kookplaat, vaatwasser, afzuigkap, combi-/magnetron), toegang naar de bijkeuken-/wasruimte met portaal en modern toilet met fonteintje, 2 toegang naar overdekt terras en tuin.
De begane grond is geheel voorzien van vloerverwarming.
Eerste verdieping:
overloop, 4 karakteristieke slaapkamers, mooie lichte badkamer met ruime inloopdouche, modern wandcloset en vaste wastafel met aanbouwmeubel.
Buitengedeelte:
omsloten zonnige tuin gelegen op het zuid-westen met een heerlijk overdekt terras, garage-/berging en een 2e berging met veel extra opslagruimte.
Algemeen/ bijzonderheden:
- bouwjaar ca. 1908, vanaf 2006 gemoderniseerd;
- energielabel C
- voorzien van dakisolatie, muur-/wandisolatie, vloerisolatie en geheel voorzien van dubbel glas (deels H.R.);
- sfeervolle woonkamer (ca. 31m2), aparte woon-/leefkeuken (ca. 14m2);
- begane grond geheel voorzien van vloerverwarming;
- 4 ruime slaapkamers en een aparte werk-/slaapkamer op de begane grond;
- fijn overdekt terras;
- garage-/berging: ca. 20m2;
- 2e berging: ca. 17m2
- woonoppervlakte ca. 147 m2
- inhoud ca. 625 m3
Vraagprijs: € 375.000,-- k.k.
Aanvaarding: in overleg.
VIRTUEEL RONDLOPEN IN 3D?
BEKIJK OOK DE WONINGPRESENTATIE DOOR ONDERSTAANDE LINK TE KOPIEEREN IN UW BROWSER
( OP FUNDA: ZIE DE LINK BIJ DE WONING OP ONZE WEBSITE WWW.WIJMAKELAARS.NL).
De virtuele tour laat zien hoe je van de ene kamer naar de hal loopt, de badkamer in.
Alsof jezelf in het huis bent en er doorheen wandelt !
Algemeen:
* Deze informatiebrochure is met zorg samengesteld. Aan eventuele fouten, onvolledige of onjuiste informatie kunnen echter geen rechten worden ontleend. De verkopend makelaar aanvaardt echter geen aansprakelijkheid wegens eventuele fouten en onjuistheden. De verstrekte informatie is indicatief. Een bezichtiging van de woning of onroerende zaak geeft de beste indruk en kijk op zaken. U krijgt de gelegenheid om de te koop staande onroerende zaak te bezichtigen, te beoordelen en te onderzoeken zodat u zich zelf kan overtuigen.
De verkopend makelaar aanvaardt echter geen aansprakelijkheid wegens eventuele fouten en onjuistheden. De verstrekte informatie is indicatief. Een bezichtiging van de woning of onroerende zaak geeft de beste indruk en kijk op zaken. U krijgt de gelegenheid om de te koop staande onroerende zaak te bezichtigen, te beoordelen en te onderzoeken zodat u zich zelf kan overtuigen.
- Deze verkoopinformatie is met de nodige zorgvuldigheid samengesteld. Hierbij zijn wij deels afhankelijk van informatie die wij van derden ontvangen. Aan onjuistheden en/of onvolkomenheden kunt u echter geen rechten ontlenen. Indien bepaalde informatie voor u van wezenlijk belang is dan adviseren wij u deze op juistheid te controleren. Onzerzijds wordt geen aansprakelijkheid aanvaardt voor enige onvolledigheid, onjuistheid of anderszins, dan wel de gevolgen daarvan. Alle opgegeven maten en oppervlakten zijn indicatief;
- Koper is te allen tijde gerechtigd om voor eigen rekening een bouwkundig onderzoek te (laten) verrichten, dan wel andere adviseurs te raadplegen teneinde een goed inzicht te verkrijgen in de staat van onderhoud of andere aspecten van de onroerende zaak. Koper dient bij het doen van een bod wel direct aan te geven of hij een dergelijk onderzoek wenst;
- De waarborgsom/bankgarantie is 10% van de koopsom. De koper dient deze 1 week na het vervallen van de ontbindende voorwaarden bij de desbetreffende notaris te deponeren;
- Ter bescherming van de belangen van zowel koper als verkoper, wordt uitdrukkelijk gesteld dat een koopovereenkomst met betrekking tot deze onroerende zaak eerst dan tot stand komt, nadat koper en verkoper de koopovereenkomst hebben getekend ("schriftelijkheidsvereiste").
Om de beste ervaringen te bieden, gebruiken wij technologieën zoals cookies om informatie over je apparaat op te slaan en/of te raadplegen. Door in te stemmen met deze technologieën kunnen wij gegevens zoals surfgedrag of unieke ID's op deze site verwerken. Als je geen toestemming geeft of uw toestemming intrekt, kan dit een nadelige invloed hebben op bepaalde functies en mogelijkheden.
Functioneel
Altijd actief
De technische opslag of toegang is strikt noodzakelijk voor het legitieme doel het gebruik mogelijk te maken van een specifieke dienst waarom de abonnee of gebruiker uitdrukkelijk heeft gevraagd, of met als enig doel de uitvoering van de transmissie van een communicatie over een elektronisch communicatienetwerk.
Voorkeuren
De technische opslag of toegang is noodzakelijk voor het legitieme doel voorkeuren op te slaan die niet door de abonnee of gebruiker zijn aangevraagd.
Statistieken
De technische opslag of toegang die uitsluitend voor statistische doeleinden wordt gebruikt.De technische opslag of toegang die uitsluitend wordt gebruikt voor anonieme statistische doeleinden. Zonder dagvaarding, vrijwillige naleving door je Internet Service Provider, of aanvullende gegevens van een derde partij, kan informatie die alleen voor dit doel wordt opgeslagen of opgehaald gewoonlijk niet worden gebruikt om je te identificeren.
Marketing
De technische opslag of toegang is nodig om gebruikersprofielen op te stellen voor het verzenden van reclame, of om de gebruiker op een site of over verschillende sites te volgen voor soortgelijke marketingdoeleinden.